7 ChattanoogaIrvine, CA 92620




Mortgage Calculator
Monthly Payment (Est.)
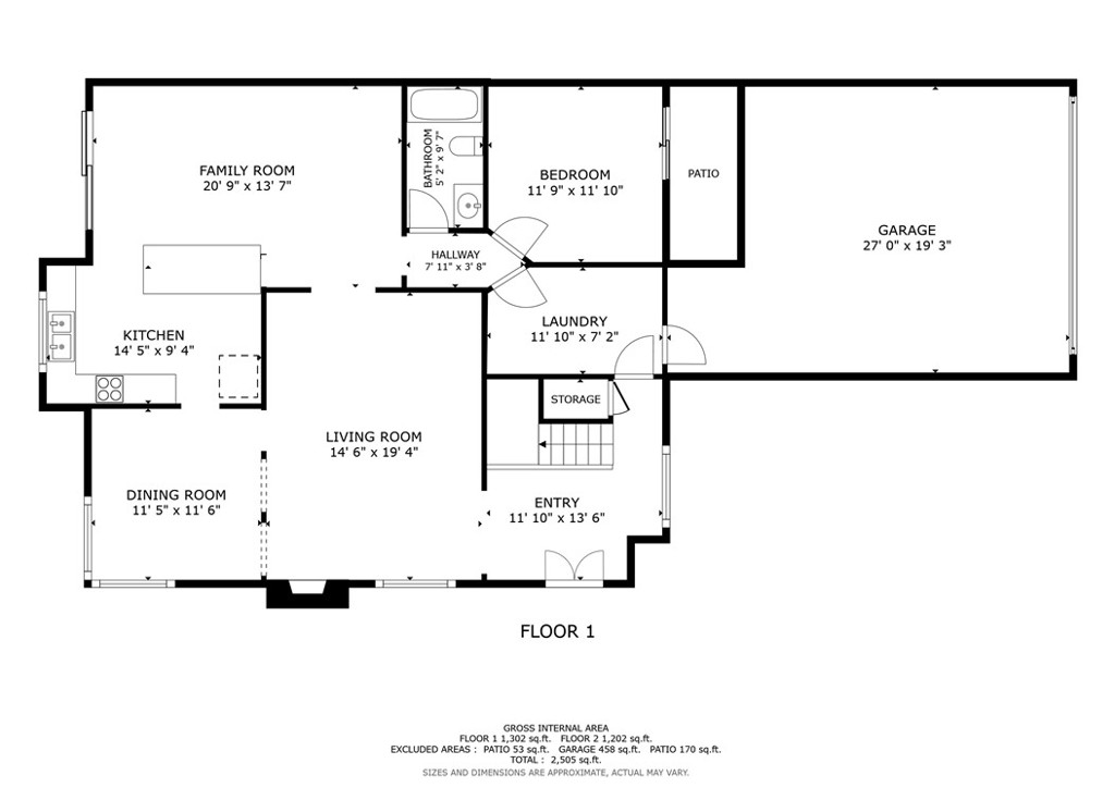
$25Incredible Lease Opportunity in the Heart of Northwood! Spacious and beautifully maintained, this nearly 2,600 square foot home offers 4 bedrooms (including one downstairs) and 3 full bathrooms, perfect for multi-generational living or work-from-home flexibility. Nestled on a quiet cul-de-sac, enjoy the convenience of a 2-car direct access garage and abundant natural light throughout. Take advantage of top-notch community amenities including a resort-style pool, tennis courts, and hiking trails just 100 yards away. For families, it doesn’t get better: you’re less than 500 yards—as the crow and Red-Tailed Hawk fly—from all three top-ranked schools: Northwood Elementary, Sierra Vista Middle, and Northwood High School – all National Blue Ribbon Award winners. A rare lease in one of Irvine’s most desirable neighborhoods—don’t miss this one! FOR LEASE – Prime Northwood Location 4 Bedrooms | 3 Full Bathrooms | ~2,600 Sq Ft | 2-Car Attached Garage Located on a quiet cul-de-sac in the heart of Northwood, this spacious home features: One full bedroom and bathroom downstairs – ideal for guests or multi-gen living Open and airy floor plan with natural light throughout Direct access 2-car garage Access to community pool, tennis courts, and hiking trails – all less than 100 yards away Top-Ranked Schools Within Walking Distance: • Northwood Elementary • Sierra Vista Middle School • Northwood High School (All National Blue Ribbon Award Winners – less than 500 yards away) This is a rare lease opportunity in one of Irvine’s most sought-after neighborhoods. Available now – contact for details or to schedule a showing.
| 2 months ago | Status changed to Active | |
| 2 months ago | Listing updated with changes from the MLS® | |
| 2 months ago | Price changed to $5,500 | |
| 9 months ago | Listing first seen on site |
This information is for your personal, non-commercial use and may not be used for any purpose other than to identify prospective properties you may be interested in purchasing. The display of MLS data is usually deemed reliable but is NOT guaranteed accurate by the MLS. Buyers are responsible for verifying the accuracy of all information and should investigate the data themselves or retain appropriate professionals. Information from sources other than the Listing Agent may have been included in the MLS data. Unless otherwise specified in writing, the Broker/Agent has not and will not verify any information obtained from other sources. The Broker/Agent providing the information contained herein may or may not have been the Listing and/or Selling Agent.




















